Wir freuen uns, Ihnen dieses besondere Wohn- und Geschäftshaus in Lauffen am Neckar vorstellen zu dürfen. Mit einer Wohnfläche von insgesamt ca. 234 m² und einer zusätzlichen Nutzfläche von rund 154 m² bietet Ihnen diese Immobilie vielfältige Nutzungsmöglichkeiten. Eine geräumige Scheune mit großem Gewölbekeller eröffnet zudem spannende Optionen für individuelle Gestaltung und Nutzung. Das Anwesen umfasst drei separate Einheiten, von denen derzeit zwei zu Wohnzwecken genutzt werden.
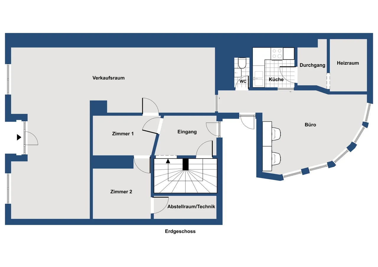
Im Erdgeschoss befindet sich eine vielseitig nutzbare Ladeneinheit, die großzügigen Raum für neue Ideen bietet – sei es durch eine Umnutzung zu Wohnzwecken oder eine erneute Vermietung als Gewerbefläche. Der vordere Bereich eignet sich ideal als Kunden- oder Empfangszone, während der hintere Teil zusätzlichen Platz für ein Büro bietet. Ergänzt wird diese Ebene durch praktische Abstellräume, eine Toilette sowie eine kleine Kücheneinheit für den laufenden Betrieb.
Die erste Etage überzeugt mit einem durchdachten Grundriss und vielen wohnlichen Details. Im Treppenhaus steht eine zusätzliche Abstellfläche zur Verfügung – ideal für Dinge des täglichen Bedarfs. Ein sonniger Balkon lädt zum Entspannen ein und bietet den perfekten Ort, um gemütliche Stunden mit Familie und Freunden zu genießen. Beim Betreten der Wohnung empfängt Sie ein heller Eingangsbereich mit Platz für eine Garderobe. Auf der rechten Seite befindet sich ein freundliches Tageslichtbad, das durch seine angenehme Atmosphäre überzeugt; eine separate Toilette sorgt für zusätzlichen Komfort. Zwei gut geschnittene Schlafzimmer lassen sich flexibel als Schlaf-, Gäste- oder Arbeitszimmer nutzen. Das großzügige Wohnzimmer bildet das Herzstück der Wohnung – es begeistert mit seiner offenen Raumwirkung und einem gemütlichen Kamin, der in der kalten Jahreszeit für wohlige Wärme sorgt. Die angrenzende Küche verfügt über einen praktischen Abstellraum sowie Anschlüsse für Waschmaschine und Trockner. Ein weiteres, direkt an das Wohnzimmer angeschlossenes Zimmer kann als zusätzliches Schlafzimmer oder Büro genutzt werden.
In der zweiten Etage erwartet Sie eine großzügige 5-Zimmer-Maisonettewohnung, die sich über zwei Ebenen erstreckt und insgesamt circa. 129 m². Gleich am Eingang befindet sich ein praktisch gelegenes Gäste-WC. Im weiteren Verlauf finden Sie ein weiteres Zimmer, das derzeit als Ankleidezimmer genutzt wird, sich aber ebenso gut als Homeoffice eignet. Auf der linken Seite liegt das Schlafzimmer mit direktem Zugang zum Badezimmer. Herzstück dieser Ebene ist das lichtdurchflutete Wohn- und Esszimmer, das durch seine offene Gestaltung besonders einladend wirkt. Das halboffene Küchenkonzept fügt sich harmonisch in den Raum ein und schafft eine moderne Wohnatmosphäre. Ein zusätzlicher Abstellraum, angrenzend an den Wohnbereich, bietet praktischen Stauraum für Dinge des Alltags.
In der oberen Etage der Maisonettewohnung befinden sich zwei weitere, ähnlich gestaltete Schlafzimmer sowie ein zusätzliches Badezimmer, wodurch das Raumangebot dieser Einheit komplettiert wird.
Auf dem Grundstück befindet sich zudem eine großzügige Scheune, die nicht nur zusätzlichen Stauraum, sondern auch zwei überdachte Stellplätze für Fahrzeuge bietet. Unterkellert ist sie durch einen beeindruckenden Gewölbekeller, der vielfältige Gestaltungsmöglichkeiten eröffnet – etwa als Weinkeller, Atelier oder Werkstatt.
Überzeugen Sie sich selbst von den vielseitigen Möglichkeiten dieser Immobilie und vereinbaren Sie noch heute einen Besichtigungstermin!
Lauffen am Neckar, eine charmante Stadt mit wachsender Beliebtheit, liegt malerisch zwischen Weinbergen und dem Neckar eingebettet. Die Stadt überzeugt durch ihren gelungenen Mix aus ländlichem Flair und städtischer Infrastruktur und bietet somit eine hohe Wohn- und Lebensqualität. Dank der verkehrsgünstigen Lage zwischen Heilbronn und Bietigheim-Bissingen ist Lauffen besonders für Pendler attraktiv. Über die B27 erreichen Sie Heilbronn in etwa 15 Minuten und Ludwigsburg in rund 25 Minuten. Auch der Bahnhof Lauffen bietet eine hervorragende Anbindung an den Regionalverkehr, mit regelmäßigen Zügen in Richtung Stuttgart und Heilbronn. Familienfreundlichkeit wird in Lauffen großgeschrieben: Neben mehreren Kindergärten und Grundschulen gibt es auch weiterführende Schulen direkt vor Ort. Ergänzt wird das Angebot durch zahlreiche Vereine, Sportstätten und kulturelle Einrichtungen, die das gesellschaftliche Leben prägen. Zudem finden Sie in Lauffen alle Geschäfte des täglichen Bedarfs, Ärzte, Apotheken sowie eine Vielzahl an gastronomischen Angeboten. Die umliegenden Weinberge und der Neckar bieten vielfältige Möglichkeiten zur Erholung und Freizeitgestaltung – ob beim Wandern, Radfahren oder bei einem Spaziergang entlang des Flusses. Insgesamt präsentiert sich Lauffen am Neckar als eine lebendige und familienfreundliche Stadt, die Ruhe, Natur und eine hervorragende Anbindung ideal miteinander verbindet.